ГОСТ 21.201-2011 Система проектной документации для строительства (СПДС). Условные графические изображения элементов зданий, сооружений и конструкций (Переиздание)
ГОСТ 21.201-2011
МКС 01.100.30
Дата введения 2013-05-01
Предисловие
Цели, основные принципы и общие правила проведения работ по межгосударственной стандартизации установлены ГОСТ 1.0 «Межгосударственная система стандартизации. Основные положения» и ГОСТ 1.2 «Межгосударственная система стандартизации. Стандарты межгосударственные, правила и рекомендации по межгосударственной стандартизации. Правила разработки, принятия, обновления и отмены»
Сведения о стандарте
1 РАЗРАБОТАН Открытым акционерным обществом «Центр методологии нормирования и стандартизации в строительстве» (ОАО «ЦНС»)
2 ВНЕСЕН Техническим комитетом по стандартизации ТК 465 «Строительство»
3 ПРИНЯТ Межгосударственной научно-технической комиссией по стандартизации, техническому нормированию и оценке соответствия в строительстве (МНТКС) (протокол от 8 декабря 2011 г.
N 39)
За принятие проголосовали:
Краткое наименование страны по МК (ИСО 3166) 004-97 | Код страны по МК (ИСО 3166) 004-97 | Сокращенное наименование национального органа по стандартизации |
Азербайджан | AZ | Госстрой |
Армения | AM | Министерство градостроительства |
Казахстан | KZ | Агентство по делам строительства и жилищно-коммунального хозяйства |
Киргизия | KG | Госстрой |
Молдова | MD | Министерство строительства и регионального развития |
Россия | RU | Департамент архитектуры, строительства и градостроительной политики Министерства регионального развития |
Таджикистан | TJ | Агентство по строительству и архитектуре при Правительстве |
Узбекистан | UZ | Госархитектстрой |
Украина | UA | Министерство регионального развития, строительства и ЖКХ |
4 Приказом Федерального агентства по техническому регулированию и метрологии от 11 октября 2012 г.
N 481-ст межгосударственный стандарт ГОСТ 21.201-2011 введен в действие в качестве национального стандарта Российской Федерации с 1 мая 2013 г.
5 ВЗАМЕН ГОСТ 21.501-93 в части приложения 1 и СТ СЭВ 1633-79, СТ СЭВ 2825-80, СТ СЭВ 2826-80, СТ СЭВ 4937-84
6 ПЕРЕИЗДАНИЕ. Июль 2020 г.
Информация о введении в действие (прекращении действия) настоящего стандарта и изменений к нему на территории указанных выше государств публикуется в указателях национальных стандартов, издаваемых в этих государствах, а также в сети Интернет на сайтах соответствующих национальных органов по стандартизации.
В случае пересмотра, изменения или отмены настоящего стандарта соответствующая информация будет опубликована на официальном интернет-сайте Межгосударственного совета по стандартизации, метрологии и сертификации в каталоге «Межгосударственные стандарты»
1 Область применения
Настоящий стандарт устанавливает основные условные графические изображения и обозначения элементов зданий, сооружений и строительных конструкций, применяемые в проектной и рабочей документации для строительства.
2 Нормативные ссылки
В настоящем стандарте использованы нормативные ссылки на следующие межгосударственные стандарты:
ГОСТ 2.303 Единая система конструкторской документации. Линии
ГОСТ 2.306 Единая система конструкторской документации. Обозначения графические материалов и правила их нанесения на чертежах
ГОСТ 2.315 Единая система конструкторской документации. Изображения упрощенные и условные крепежных деталей
ГОСТ 21.112 Система проектной документации для строительства. Подъемно-транспортное оборудование. Условные обозначения
ГОСТ 21.204 Система проектной документации для строительства. Условные графические обозначения и изображения элементов генеральных планов и сооружений транспорта
ГОСТ 21.205 Система проектной документации для строительства. Условные обозначения элементов санитарно-технических систем
ГОСТ 21.206 Система проектной документации для строительства. Условные обозначения трубопроводов
ГОСТ 21.
302 Система проектной документации для строительства. Условные графические обозначения в документации по инженерно-геологическим изысканиям
ГОСТ 21.501 Система проектной документации для строительства. Правила выполнения рабочей документации архитектурных и конструктивных решений
Примечание — При пользовании настоящим стандартом целесообразно проверить действие ссылочных стандартов и классификаторов на официальном интернет-сайте Межгосударственного совета по стандартизации, метрологии и сертификации (www.easc.by) или по указателям национальных стандартов, издаваемым в государствах, указанных в предисловии, или на официальных сайтах соответствующих национальных органов по стандартизации. Если на документ дана недатированная ссылка, то следует использовать документ, действующий на текущий момент, с учетом всех внесенных в него изменений. Если заменен ссылочный документ, на который дана датированная ссылка, то следует использовать указанную версию этого документа. Если после принятия настоящего стандарта в ссылочный документ, на который дана датированная ссылка, внесено изменение, затрагивающее положение, на которое дана ссылка, то это положение применяется без учета данного изменения.
Если ссылочный документ отменен без замены, то положение, в котором дана ссылка на него, применяется в части, не затрагивающей эту ссылку.
3 Общие положения
3.1 Проектируемые здания, сооружения и их элементы изображают на чертежах с применением условных графических обозначений и упрощенных изображений, установленных настоящим стандартом с учетом требований ГОСТ 21.501, а также с применением условных обозначений, установленных ГОСТ 2.306, ГОСТ 21.112, ГОСТ 21.204, ГОСТ 21.205, ГОСТ 21.206 и ГОСТ 21.302.
3.2 Типы линий, применяемые при выполнении условных изображений и обозначений, должны соответствовать ГОСТ 2.303.
3.3 Допускается применять дополнительные условные изображения и обозначения, не предусмотренные в настоящем стандарте, поясняя их на чертеже или в общих данных по рабочим чертежам.
4 Условные графические изображения и обозначения
4.1 Стены
Стены и перегородки (без заполнения проемов) на чертежах изображают в соответствии с таблицей 1.
Таблица 1
Наименование | Изображение |
1 Стена с проемом без парапета и перемычки | |
2 Стена с проемом и перемычкой | |
3 Стена с проемом, парапетом и перемычкой | |
4 Стена с проемом, сводчатой перемычкой, четвертью окна и парапетом небольших толщин стен | |
5 Стена с проемами, расположенными друг над другом | |
6 Стена с проемом, расположенным внизу (парапетная зона) | |
7 Горизонтально оформленная стена (с изгибом и закруглением) | |
8 Стена с переменной толщиной в вертикальном сечении | |
9 Наклонно стоящая стена с сечением, утолщенным внизу | |
10 Стена переменной толщины с проемом и парапетом* | |
11 Наклонно стоящая стена с проемом и парапетом** | |
12 Вертикальная стена с оформлением | |
13 Перегородка из стеклоблоков (на плане и разрезе) | |
* В плане проем не показывают. ** В плане невидимую грань стены не показывают и проем изображают в упрощенном виде. Примечание — Тонкие стены (менее 2 мм в соответствующем масштабе) изображают зачерненными. Ограничения проемов в этом случае изображают короткими поперечными штрихами. | |
4.2 Опоры и колонны
Опоры, колонны и пилоны изображают в соответствии с таблицей 2.
Таблица 2
Наименование | Изображение | |
на плане | на разрезе | |
1 Колонна (опора) | ||
2 Колонна с вутами и прогоном (ригелем) | ||
3 Колонна с сечением, увеличивающимся или уменьшающимся наверх | ||
4 Составная колонна | ||
5 Опора (пилон) с сечением, увеличивающимся или уменьшающимся наверх | ||
6 Колонна металлическая: | ||
— сплошностенчатая | ||
— двухветвевая | ||
Примечание — Изображение а — для колонн без консоли, б и в — для колонн с консолью. | ||
Примечания 1 Горизонтальную плоскость сечения колонн, опор и пилонов располагают на высоте 1 м над полом. Если база колонны выполнена по специальной конструкции, то горизонтальную плоскость сечения располагают в нижней части колонны над базой. Особенности конструкции капители колонны (например, вуты) изображают тонкой штриховой линией. 2 В случае переменного сечения колонн горизонтальную плоскость сечения выполняют в нижней части опоры. | ||
4.3 Фермы, плиты и связи
Фермы, плиты и связи изображают в соответствии с таблицей 3.
Таблица 3
Наименование | Изображение | |
на плане | на разрезе | |
1 Ферма Примечание — Изображение а — для фермы железобетонной, б — для фермы металлической. | ||
2 Плита, панель ребристые | ||
3 Связь металлическая: | ||
а) одноплоскостная: | ||
— вертикальная | ||
— горизонтальная | ||
б) двухплоскостная | ||
в) тяжи | ||
4.
4 Проемы и отверстия
Проемы и отверстия изображают в соответствии с таблицей 4.
Таблица 4
Наименование | Изображение |
1 Проем или отверстие в стене, перекрытии, перегородке, покрытии (проектируемые без заполнения). Примечание — Ломаную линию внутри изображения допускается не проводить, если однозначно понятно, что это — проем или отверстие. | |
2 Проем или отверстие, подлежащие пробивке в существующей стене, перегородке, покрытии, перекрытии | |
3 Проем или отверстие в существующей стене, перегородке, покрытии, перекрытии, подлежащие заделке. Примечание — В поясняющей надписи вместо многоточия указывают материал закладки. | |
4 Проем оконный (на плане и разрезе): | |
а) без четверти | |
б) с четвертью. Примечание — Для чертежей в масштабе 1:200 и мельче, а также для чертежей конструкций заводского изготовления проемы изображают в упрощенном виде (без четвертей). |
4.5 Ниши, пазы и борозды
4.5.1 Ниши, пазы и борозды стен и перекрытий изображают в соответствии с таблицей 5.
4.5.2 Если мнимая плоскость разреза проходит вне изображения ниш, пазов и борозд, то их контуры на плане и разрезе изображают тонкой штриховой линией.
Таблица 5
Наименование | Изображение |
1 Ниша, паз (в плоскости разреза) Примечание — Диагональ внутри изображения допускается не проводить, если однозначно понятно, что это — паз или ниша. | |
2 Паз в перекрытии (в плоскости разреза) Примечание — Размеры пазов и ниш на полке линии-выноски указывают в следующей последовательности: ширина, высота и глубина. Для ниш и пазов круглого сечения указывают размеры диаметра и глубины. | |
3 Паз в перекрытии (выше плоскости разреза) |
ГОСТ 21.201-2011
ГОСТ 21.201-2011
МКС 01.100.30
Дата введения 2013-05-01
Предисловие
Цели, основные принципы и общие правила проведения работ по межгосударственной стандартизации установлены ГОСТ 1.0 «Межгосударственная система стандартизации. Основные положения» и ГОСТ 1.2 «Межгосударственная система стандартизации. Стандарты межгосударственные, правила и рекомендации по межгосударственной стандартизации. Правила разработки, принятия, обновления и отмены»
Сведения о стандарте
1 РАЗРАБОТАН Открытым акционерным обществом «Центр методологии нормирования и стандартизации в строительстве» (ОАО «ЦНС»)
2 ВНЕСЕН Техническим комитетом по стандартизации ТК 465 «Строительство»
3 ПРИНЯТ Межгосударственной научно-технической комиссией по стандартизации, техническому нормированию и оценке соответствия в строительстве (МНТКС) (протокол от 8 декабря 2011 г.
N 39)
За принятие проголосовали:
Краткое наименование страны по МК (ИСО 3166) 004-97 | Код страны по МК (ИСО 3166) 004-97 | Сокращенное наименование национального органа по стандартизации |
Азербайджан | AZ | Госстрой |
Армения | AM | Министерство градостроительства |
Казахстан | KZ | Агентство по делам строительства и жилищно-коммунального хозяйства |
Киргизия | KG | Госстрой |
Молдова | MD | Министерство строительства и регионального развития |
Россия | RU | Департамент архитектуры, строительства и градостроительной политики Министерства регионального развития |
Таджикистан | TJ | Агентство по строительству и архитектуре при Правительстве |
Узбекистан | UZ | Госархитектстрой |
Украина | UA | Министерство регионального развития, строительства и ЖКХ |
4 Приказом Федерального агентства по техническому регулированию и метрологии от 11 октября 2012 г.
N 481-ст межгосударственный стандарт ГОСТ 21.201-2011 введен в действие в качестве национального стандарта Российской Федерации с 1 мая 2013 г.
5 ВЗАМЕН ГОСТ 21.501-93 в части приложения 1 и СТ СЭВ 1633-79, СТ СЭВ 2825-80, СТ СЭВ 2826-80, СТ СЭВ 4937-84
6 ПЕРЕИЗДАНИЕ. Июль 2020 г.
Информация о введении в действие (прекращении действия) настоящего стандарта и изменений к нему на территории указанных выше государств публикуется в указателях национальных стандартов, издаваемых в этих государствах, а также в сети Интернет на сайтах соответствующих национальных органов по стандартизации.
В случае пересмотра, изменения или отмены настоящего стандарта соответствующая информация будет опубликована на официальном интернет-сайте Межгосударственного совета по стандартизации, метрологии и сертификации в каталоге «Межгосударственные стандарты»
1 Область применения
Настоящий стандарт устанавливает основные условные графические изображения и обозначения элементов зданий, сооружений и строительных конструкций, применяемые в проектной и рабочей документации для строительства.
2 Нормативные ссылки
В настоящем стандарте использованы нормативные ссылки на следующие межгосударственные стандарты:
ГОСТ 2.303 Единая система конструкторской документации. Линии
ГОСТ 2.306 Единая система конструкторской документации. Обозначения графические материалов и правила их нанесения на чертежах
ГОСТ 2.315 Единая система конструкторской документации. Изображения упрощенные и условные крепежных деталей
ГОСТ 21.112 Система проектной документации для строительства. Подъемно-транспортное оборудование. Условные обозначения
ГОСТ 21.204 Система проектной документации для строительства. Условные графические обозначения и изображения элементов генеральных планов и сооружений транспорта
ГОСТ 21.205 Система проектной документации для строительства. Условные обозначения элементов санитарно-технических систем
ГОСТ 21.206 Система проектной документации для строительства. Условные обозначения трубопроводов
ГОСТ 21.
302 Система проектной документации для строительства. Условные графические обозначения в документации по инженерно-геологическим изысканиям
ГОСТ 21.501 Система проектной документации для строительства. Правила выполнения рабочей документации архитектурных и конструктивных решений
Примечание — При пользовании настоящим стандартом целесообразно проверить действие ссылочных стандартов и классификаторов на официальном интернет-сайте Межгосударственного совета по стандартизации, метрологии и сертификации (www.easc.by) или по указателям национальных стандартов, издаваемым в государствах, указанных в предисловии, или на официальных сайтах соответствующих национальных органов по стандартизации. Если на документ дана недатированная ссылка, то следует использовать документ, действующий на текущий момент, с учетом всех внесенных в него изменений. Если заменен ссылочный документ, на который дана датированная ссылка, то следует использовать указанную версию этого документа. Если после принятия настоящего стандарта в ссылочный документ, на который дана датированная ссылка, внесено изменение, затрагивающее положение, на которое дана ссылка, то это положение применяется без учета данного изменения.
Если ссылочный документ отменен без замены, то положение, в котором дана ссылка на него, применяется в части, не затрагивающей эту ссылку.
3 Общие положения
3.1 Проектируемые здания, сооружения и их элементы изображают на чертежах с применением условных графических обозначений и упрощенных изображений, установленных настоящим стандартом с учетом требований ГОСТ 21.501, а также с применением условных обозначений, установленных ГОСТ 2.306, ГОСТ 21.112, ГОСТ 21.204, ГОСТ 21.205, ГОСТ 21.206 и ГОСТ 21.302.
3.2 Типы линий, применяемые при выполнении условных изображений и обозначений, должны соответствовать ГОСТ 2.303.
3.3 Допускается применять дополнительные условные изображения и обозначения, не предусмотренные в настоящем стандарте, поясняя их на чертеже или в общих данных по рабочим чертежам.
4 Условные графические изображения и обозначения
4.1 Стены
Стены и перегородки (без заполнения проемов) на чертежах изображают в соответствии с таблицей 1.
Таблица 1
Наименование | Изображение |
1 Стена с проемом без парапета и перемычки | |
2 Стена с проемом и перемычкой | |
3 Стена с проемом, парапетом и перемычкой | |
4 Стена с проемом, сводчатой перемычкой, четвертью окна и парапетом небольших толщин стен | |
5 Стена с проемами, расположенными друг над другом | |
6 Стена с проемом, расположенным внизу (парапетная зона) | |
7 Горизонтально оформленная стена (с изгибом и закруглением) | |
8 Стена с переменной толщиной в вертикальном сечении | |
9 Наклонно стоящая стена с сечением, утолщенным внизу | |
10 Стена переменной толщины с проемом и парапетом* | |
11 Наклонно стоящая стена с проемом и парапетом** | |
12 Вертикальная стена с оформлением | |
13 Перегородка из стеклоблоков (на плане и разрезе) | |
* В плане проем не показывают. ** В плане невидимую грань стены не показывают и проем изображают в упрощенном виде. Примечание — Тонкие стены (менее 2 мм в соответствующем масштабе) изображают зачерненными. Ограничения проемов в этом случае изображают короткими поперечными штрихами. | |
4.2 Опоры и колонны
Опоры, колонны и пилоны изображают в соответствии с таблицей 2.
Таблица 2
Наименование | Изображение | |
на плане | на разрезе | |
1 Колонна (опора) | ||
2 Колонна с вутами и прогоном (ригелем) | ||
3 Колонна с сечением, увеличивающимся или уменьшающимся наверх | ||
4 Составная колонна | ||
5 Опора (пилон) с сечением, увеличивающимся или уменьшающимся наверх | ||
6 Колонна металлическая: | ||
— сплошностенчатая | ||
— двухветвевая | ||
Примечание — Изображение а — для колонн без консоли, б и в — для колонн с консолью. | ||
Примечания 1 Горизонтальную плоскость сечения колонн, опор и пилонов располагают на высоте 1 м над полом. Если база колонны выполнена по специальной конструкции, то горизонтальную плоскость сечения располагают в нижней части колонны над базой. Особенности конструкции капители колонны (например, вуты) изображают тонкой штриховой линией. 2 В случае переменного сечения колонн горизонтальную плоскость сечения выполняют в нижней части опоры. | ||
4.3 Фермы, плиты и связи
Фермы, плиты и связи изображают в соответствии с таблицей 3.
Таблица 3
Наименование | Изображение | |
на плане | на разрезе | |
1 Ферма Примечание — Изображение а — для фермы железобетонной, б — для фермы металлической. | ||
2 Плита, панель ребристые | ||
3 Связь металлическая: | ||
а) одноплоскостная: | ||
— вертикальная | ||
— горизонтальная | ||
б) двухплоскостная | ||
в) тяжи | ||
4.
4 Проемы и отверстия
Проемы и отверстия изображают в соответствии с таблицей 4.
Таблица 4
Наименование | Изображение |
1 Проем или отверстие в стене, перекрытии, перегородке, покрытии (проектируемые без заполнения). Примечание — Ломаную линию внутри изображения допускается не проводить, если однозначно понятно, что это — проем или отверстие. | |
2 Проем или отверстие, подлежащие пробивке в существующей стене, перегородке, покрытии, перекрытии | |
3 Проем или отверстие в существующей стене, перегородке, покрытии, перекрытии, подлежащие заделке. Примечание — В поясняющей надписи вместо многоточия указывают материал закладки. | |
4 Проем оконный (на плане и разрезе): | |
а) без четверти | |
б) с четвертью. Примечание — Для чертежей в масштабе 1:200 и мельче, а также для чертежей конструкций заводского изготовления проемы изображают в упрощенном виде (без четвертей). |
4.5 Ниши, пазы и борозды
4.5.1 Ниши, пазы и борозды стен и перекрытий изображают в соответствии с таблицей 5.
4.5.2 Если мнимая плоскость разреза проходит вне изображения ниш, пазов и борозд, то их контуры на плане и разрезе изображают тонкой штриховой линией.
Таблица 5
Наименование | Изображение |
1 Ниша, паз (в плоскости разреза) Примечание — Диагональ внутри изображения допускается не проводить, если однозначно понятно, что это — паз или ниша. | |
2 Паз в перекрытии (в плоскости разреза) Примечание — Размеры пазов и ниш на полке линии-выноски указывают в следующей последовательности: ширина, высота и глубина. Для ниш и пазов круглого сечения указывают размеры диаметра и глубины. | |
3 Паз в перекрытии (выше плоскости разреза) | |
4 Борозда Примечания 1 Борозды изображают в масштабе 1:100 и 1:50 и крупнее и не изображают в масштабе 1:200 и мельче. 2 Размеры борозд на полке линии-выноски указывают в следующей последовательности: ширина, глубина, длина. |
4.6 Пандусы, лестницы и отмостки
Пандусы, лестницы и отмостки изображают в соответствии с таблицей 6.
Таблица 6
Наименование | Изображение | |
на плане | на разрезе | |
1 Пандус Примечания 1 Уклон пандуса указывают на плане в процентах (например, 10,5%) или в виде отношения высоты и длины (например, 1:7). 2 Стрелкой на плане указывают направление подъема пандуса. | ||
2 Лестница: | В масштабе 1:50 и крупнее | |
а) нижний марш | ||
б) промежуточные марши | В масштабе 1:100 и мельче, а также для схем расположения элементов сборных конструкций | |
в) верхний марш | ||
3 Лестница металлическая: | ||
а) вертикальная | ||
б) наклонная | ||
4 Отмостка | ||
Примечание — На планах лестниц стрелкой указано направление подъема марша. | ||
4.7 Двери и ворота
Двери и ворота на плане изображают в соответствии с таблицей 7.
Таблица 7
Наименование | Изображение |
1 Дверь (ворота) однопольная | |
2 Дверь (ворота) двупольная | |
3 Дверь двойная однопольная | |
4 Дверь двойная двупольная | |
5 Дверь однопольная с качающимся полотном (правая или левая) | |
6 Дверь двупольная с качающимися полотнами | |
7 Дверь (ворота) откатная однопольная наружная | |
8 Дверь (ворота) откатная однопольная с открыванием в нишу | |
9 Дверь (ворота) раздвижная двупольная | |
10 Дверь (ворота) подъемная | |
11 Дверь (ворота) складчатая | |
12 Дверь (ворота) складчато-откатная | |
13 Дверь вращающаяся | |
14 Ворота подъемно-поворотные | |
Примечания 1 На чертежах масштабов 1:50 и крупнее двери (ворота) изображают с указанием порогов, четвертей и т. 2 Варианты условных изображений дверей, обозначенные буквой «б», являются допускаемыми. | |
4.8 Оконные переплеты
Оконные переплеты на фасаде изображают в соответствии с таблицей 8.
Таблица 8
Наименование | Изображение |
1 Переплет с боковым подвесом, открывающийся внутрь | |
2 Переплет с боковым подвесом, открывающийся наружу | |
3 Переплет с нижним подвесом, открывающийся внутрь | |
4 Переплет с нижним подвесом, открывающийся наружу | |
5 Переплет с верхним подвесом, открывающийся внутрь | |
6 Переплет с верхним подвесом, открывающийся наружу | |
7 Переплет со средним подвесом горизонтальным | |
8 Переплет со средним подвесом вертикальным | |
9 Переплет раздвижной | |
10 Переплет с подъемом | |
11 Переплет глухой | |
12 Переплет с боковым или нижним подвесом, открывающийся внутрь. | |
Примечание — Вершину знака направляют к обвязке, на которую не навешивают переплет. |
4.9 Арматурные изделия
Арматурные изделия изображают в соответствии с таблицей 9.
Таблица 9
Наименование | Изображение | |
1 Обычная арматура | ||
1.1 Арматурный стержень: | ||
а) главный вид | ||
б) сечение | ||
1.2 Арматурный пучок с маркировкой, указывающей количество стержней в пучке: | ||
а) главный вид | ||
б) сечение | ||
1. | ||
1.4 Конец арматурного стержня с анкеровкой: | ||
а) с крюком (отгибом под углом 180°) | ||
б) с отгибом под углом от 90° до 180° | ||
в) с отгибом под углом 90° | ||
1.5 Анкерные кольцо или пластина: | ||
а) главный вид | ||
б) вид с торца | ||
1. | ||
1.7 Арматурный стержень с отгибом под прямым углом, идущим в направлении от читателя в документации, предназначенной для микрофильмирования, и там, где стержни расположены друг к другу очень близко | ||
1.8 Арматурный стержень с отгибом под прямым углом, идущим в направлении к читателю | ||
2 Арматурные соединения | ||
2.1 Соединение стержней при помощи механической муфты: | ||
а) муфта растяжения | ||
б) муфта сжатия | ||
2. | ||
а) упрощенно (поперечные стержни наносят по концам каркаса или в местах изменения шага стержней) | ||
б) условно | ||
2.3 Несколько одинаковых плоских каркасов или сеток | ||
3 Предварительно напряженная арматура | ||
3.1 Предварительно напряженные арматурный стержень или трос: | ||
а) главный вид | ||
б) сечение | ||
3. | ||
3.3 Анкеровка у напрягаемых концов | ||
3.4 Заделанная анкеровка: | ||
| Дымовые и вентиляционные каналы: | |
| В каменных стенах из стандартных камней делать каналы 13,5 х 13,5 и 13,5 х 20 см. Поперечные сечения вентиляционных и дымовых каналов по возможности выполнять квадратными или прямоугольными с соотношением сторон 1 : 1,5 | |
Окна в деревянных коробках из брусков: | |
1. 2. Двойные переплёты в общей коробке, открывание внутрь (K), двойные переплёты (D), спаренные переплёты (V). 3. Одинарный переплёт, внутренняя четверть 4. Двойные переплёты в раздельных коробках, открывание в разные стороны (D) | |
Окна с косяками: | Раздвижные окна: |
1. Одинарный переплёт. 2. Двойные переплёты (D), двойные переплёты в общей коробке (K), спаренные переплёты (V). | 1. Одинарный переплёт (S) 2. Двойные переплёты (SD) |
Двери: | |
1. Вращающаяся створка 2. 3. Двустворчатая дверь 4. Поворотная створка 5. Качающаяся створка 6. Двухстворчатая качающаяся дверь 7. Вращающаяся створка с подъёмным устройством | 8. Раздвижная створка 9. Раздвижная створка с подъёмным устройством 10. Вращающаяся дверь 11. Складчатая перегородка 12. Без порога 13. Порог с одной стороны 14. Порог с двух сторон |
Изображение зазоров, выемок, проёмов в стенах на рабочих чертежах: | |
1. Заделываются в конечном положении 2. Остаются открытыми в конечном положении | |
| |
1. 2. Первый этаж 3. Верхний этаж 4. Чердак | |
виды, характеристики и особенности монтажа
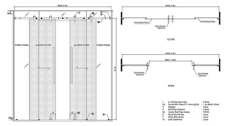
Традиционные распахивающиеся двери устраивают далеко не всех. А вот сдвижные системы имеют массу преимуществ – не «хлопают», смещаются бесшумно и не занимают часть полезного пространства комнаты. Чтобы результат работы по их монтажу не разочаровал, нужно знать, какими бывают механизмы для раздвижных дверей, как их выбирать для конкретной конструкции.
На заметку!
- Подыскивая готовый комплект механизма, следует учитывать не только специфику смещения полотен, но и сложность монтажа и регулировки системы.
- При самостоятельном изготовлении элементов конструкции принимается во внимание особенность перемещения дверных полотен и место их установки.
Составные части комплектов
По своему устройству различные механизмы сдвижных дверей мало чем отличаются друг от друга, разве что спецификой смещения створок.
А потому в состав комплектов входят практически одни и те же элементы; разница лишь в их количестве и конструктивном исполнении.
Рельсы
В качестве направляющих в сдвижных системах дверей используются в основном профили.
Отличие между ними – в количестве «дорожек». Специфика применения зависит от того, как именно полотна закрывают проем: встык или с перехлестом. По сути, это традиционные двери-купе, хорошо знакомые многим. При выборе профиля имеет значение и металл, из которого он изготовлен. Для массивных дверей алюминий (хоть он и дешевле) лучше не использовать; из-за деформации появятся проблемы с раздвижными дверьми – только сталь.
Роликовые опоры
Они также отличаются особенностями конструкции. Необходимое количество колес (а их может быть у верхних механизмов до 8) определяется массой полотна и типом системы скольжения. Встречаются отличия и в самом расположении колесиков: симметричное или со смещением (асимметричное). Для дверей весом не более 80 кг можно использовать роликовые механизмы с двумя опорами.
Стопорные элементы
Они не являются основными, но выполняют важные функции. Первая – предотвращение «жесткого» удара двери о стену (если проем расположен близко к ней) или вылет ролика из направляющей. Такие детали называют ограничителями движения. Вторая – фиксация двери в определенном положении. Это необходимо для того, чтобы предотвратить самопроизвольное смещение полотна. Такое возможно, к примеру, при сильном сквозняке, нарушении горизонтальной ориентации рельсы вследствие усадки строения.
Механизм раздвижных дверей может дополнительно комплектоваться элементами автоматизации (доводчиками, мини- электродвигателями, тросиками, зацепами и тому подобное). Но никаких изменений в принцип его функционирования они не вносят; только лишь повышают удобство эксплуатации, не более того.
Виды систем скольжения
Открытого типа
Это самые простые модификации.
Раздвижной механизм состоит из роликовых опорных элементов и направляющих. Количество последних определяет специфику эксплуатации двери, ее устойчивость в проеме и ряд иных факторов. Почему открытого? Дело в том, что такие конструкции являются универсальными в установке. Их можно смонтировать в любом проеме, не обращая внимания на материал стены и ее структуру; без разницы, сплошная она или полая (то есть перегородка).
С одной рельсой
Такие системы называют подвесными, беспороговыми, верхними. Они самые простые в монтаже, а потому часто устанавливаются в квартирах. Это объясняется стандартными проемами, следовательно, и размеры дверей выбираются сравнительно небольшими. Недостаток в том, что внизу располагаются только ограничители, а фиксация положения полотна отсутствует. А потому возникает некоторая сложность с определением его оптимальной толщины, то есть массы. Слишком легкая дверь станет на сквозняке раскачиваться. На самой конструкции это особо не отразится, но в плане комфорта такая перспектива вряд ли кого устроит; периодические «постукивания» вызовут раздражение у любого человека.
Есть и еще один негативный момент – о звукоизоляции помещения можно забыть. А потому установка такой системы имеет ряд ограничений. К примеру, если речь идет о проеме, ведущем в кабинет или спальню – не лучший вариант раздвижной двери. Но и здесь можно найти положительный момент – подвесные полотна не препятствуют естественной циркуляции воздушных потоков.
Стоит отметить, что в таких системах в качестве направляющей используются не только профили, но и металлические стержни, трубы. А это разнообразит выбор вариантов монтажа.
С двумя направляющими
Такие системы именуют напольными. Отличие в том, что подразумевается крепление рельс и вверху, и внизу. Соответственно, увеличивается и количество роликовых механизмов. Несмотря на определенную сложность монтажа (например, точность проецирования оси направляющей с потолка на пол при разметке), такой сдвижной механизм обеспечивает ряд преимуществ.
- Он выдерживает значительную нагрузку.
То есть позволяет устанавливать в проеме массивные полотна, без особых ограничений. - Раздвижные двери всегда находятся в статике. Если установлен фиксатор, то полотно даже на сильном сквозняке «стучать» не будет.
Закрытого типа
Такие системы монтируются значительно реже. Их отличие в том, что двери «уходят» в стену, то есть после открывания створка скрывается в ней частично или полностью. Но это возможно лишь в случае с межкомнатной перегородкой, причем каркасного типа. Внутри она полая, а потому никаких препятствий для смещения двери нет.
Плюсы:
- Оригинальность системы.
- Удобство пользования. На полу, потолке направляющих нет, следовательно, их полезная площадь не уменьшается.
Минусы:
- Низкая ремонтопригодность. Если возникнут проблемы с ограничителем или створкой, то придется часть облицовки с перегородки демонтировать. Заменить роликовый механизм будет также довольно трудно. Особенно в случае, если раздвижная дверь закрывается с перехлестом полотен.
Их размеры по ширине превышают половину аналогичного параметра проема, а потому и здесь не обойтись без снятия части облицовки со стены. - Сложность ухода. Насколько бы ни были чистоплотными хозяева, но постепенно в профили набьется пыль. Как результат, некорректная работа раздвижной системы, заедания дверей и так далее. Как удалить загрязнение, вопрос отдельный, но учесть следует.
По устройству скрытый механизм для раздвижных дверей мало чем отличается от того, что используется в конструкциях открытого типа; его состав полностью идентичен. Его так называют от того, что поверху накладываются различные декоративные планки, которые и закрывают конструктивные элементы.
Существует еще и комбинированный вариант системы с двумя направляющими. Он монтируется, если выбираются тяжелые полотна, которые создают большую нагрузку на ролики. Не всегда возможно (или целесообразно) увеличивать их количество. А потому решение следующее – и нижние колесики, и верхние использовать в качестве опорных элементов.
При выборе (или самостоятельном изготовлении) механизма для раздвижных межкомнатных дверей в первую очередь нужно учитывать такую его характеристику, как грузоподъемность. Все остальные факторы – специфика установки по месту, открывания/закрывания – должны отойти на второй план. Иначе даже при профессиональном монтаже системы ее ремонтом придется заниматься уже через пару месяцев.
Дверной проем на плане. Проемы и отверстия на чертежах
Дверные и оконные проемы зданий одновременно выполняют сразу две функции: утилитарную и эстетическую. С практической точки зрения они являются теми элементами, которые обеспечивают доступ в сооружение людей, света и воздуха.
В то же самое время дверные и оконные проемы во многом определяют архитектурный облик зданий.
Согласно ГОСТ 21.201-2011 на строительных чертежах для указания проемов и отверстий должны применяться специальные обозначения.
Обычно при нанесении проёма, который предполагается сделать в перекрытии покрытии или перегородке, внутри наносят ломаную линию, которую в прочем можно и не делать, если однозначно понятно, что именно отображается.
В тех случаях, когда отверстие или проем по задумке проектировщиков должны быть заделаны, то для их изображения используют пунктирные линии, а при изображении этих элементов зданий в разрезах применяют заштриховку. В поясняющих надписях указывается материал закладки.
Упрощенный способ изображения оконных проемов в конструкциях заводского изготовления (например, железобетонных плитах) используют тогда, когда масштаб чертежа составляет 1: 200 и более мелкий. При этом четверти не изображаются.
Проемы и отверстия в помещениях в основном подразделяется на оконные, дверные и вентиляционные.
Отверстия и проемы проделываются в стенах, изготавливаемых из самых различных материалов: камень, бетон, древесина, кирпич, пенно- и газобетон и т.п.
При размещении всевозможных оконных и дверных проемов проектировщики должны обязательно учитывать такой фактор, как удобство размещения мебели при любых вариантах планировочных решений.
Чтобы правильно расположить те отверстия, через которые производится удаление или подача воздуха, нужно учитывать их пространственное положение друг относительно друга. Оно должно быть таким, чтобы через них свободно следовал воздух, как в помещения, так и за их пределы.
При сооружении стен современных зданий используется метод ручной кладки с вертикальной и горизонтальной перевязкой швов. Дверные и оконные проемы стен выполняются с устройством четвертей примыкающих к наружной стороне по вертикальным, а так же верхним граням.
Четверти дают возможность надежной и плотной установки в проемах оконных рам. Они позволяют использовать различные современные уплотнительные материалы.
Кроме того наличие четвертей очень неплохо смотрятся по итогам выполнения работ.
Предназначение окон как элементов зданий состоит в обеспечении проникновения внутрь помещений естественного освещения и их проветривания. Двери необходимы для того, чтобы обеспечить доступ в здание и связь между изолированными друг от друга помещениями.
Окна современных зданий обычно имеют двойное остекление. Они могут быть одно-, двух- или трехстворчатыми. Помимо них в проемах монтируются также сливы, изготавливаемые из оцинкованного стального листа, а также подоконные плиты. Для обустройства откосов применяют цементно-песчаный раствор.
Двери, монтируемые в современных зданиях, бывают остекленными и глухими. Остекление двери, как правило, используется для того, чтобы обеспечить равномерность освещения различных помещений, а также в качестве украшения интерьеров.
В последнее время для изготовления окон и дверей широко используется пластик. Окна оснащаются герметичными стеклопакетами, которые устанавливаются между профилями из поливинилхдлорида.
Внутри этих профилей наличествуют полости, количество которых может быть разным. За счет них обеспечивается хорошая тепло- и звукоизоляция. Чтобы она была еще лучше, окна необходимо комплектовать двухкамерными стеклопакетами.
Указание дверей и ворот на чертежах, используемых в строительстве, должно осуществляться по ГОСТ 21.201-2011 . В соответствии с этим документом, необходимо использовать специальные графические изображения.
На тех чертежах, которые выполнены в масштабе 1:400 и более мелких, дверные полотна и направление их открывания не показывается. Если масштаб
Чертеж плана раздвижной дверив GetDrawings
61 1
236×389 Деталь раздвижной двери
34
236×342 Двери складывающиеся пвх (производитель Тайвань) Двери складывающиеся
17
575×411 Fd30hhp Система раздвижных дверей встраиваемого типа
17
400×254 направляющие для раздвижных дверей с поворотным механизмом 400 мм Sds London
11
901×637 Карманный план двери Верхнее подвешенное стекло Детали раздвижной двери Раздвижная дверь
7
236×310 Free Cad Detailsbeam Pocket Detail Iso Cad Design Двери
7
План этажа для умелых раздвижных дверей 960×720 [Как рисовать раздвижные двери
4
638×450 Нарисовать план раздвижной двери Примеры планов Pdf Baxters Homes
1 1
Карманный дверной план 500×500 Одиночный пожарный выдвижной карманный дверной .
..
2
Раздвижные двери 320×320 План этажа
1
880×975 Как сделать раздвижную дверь на плане этажа
1
546×1024 Карманная дверь План Посмотреть схемы Раздвижной стеклянной двери План
1300×1300 Очаровательная раздвижная дверь в чертеже изображения
831×705 Привлечение плана раздвижной двери Как нарисовать раздвижную дверь в полу
500×345 Интересный план раздвижной стеклянной двери с планом раздвижной стеклянной двери
3
1952×2401 Изображения плана изогнутой раздвижной двери
2
1903×1525 49 Awesome Draw Этажный план
Двери для патио: все, что нужно знать перед покупкой
Двери для патио во всех их разнообразных формах — это идеальный способ впустить много естественного света, создать четкую связь с садом и максимально использовать вид.
Сейчас существует больше выбора, чем когда-либо, когда дело доходит до выбора дверей для террас, что является отличной новостью, но также может привести к тому, что сам процесс выбора правильных дверей будет довольно запутанным.
Мы помогаем упростить процесс, предлагая вам варианты и отвечая на некоторые из наиболее часто задаваемых вопросов.
Получите индивидуальное предложение на двери для террасы.
Типы дверей патио
Термин «двери патио» на самом деле охватывает множество разных стилей дверей.Несмотря на то, что все они имеют доступ в сад и обычно полностью застеклены, чтобы обеспечить естественное освещение и вид на улицу, их конструкция и режим работы различаются.
Двустворчатые двери: Двустворчатые двери, также известные как складывающиеся раздвижные двери, в последние годы стали очень популярны.
Ключевыми преимуществами являются то, что они позволяют полностью открывать целые стеклянные стены, и, поскольку они обычно проходят по дорожкам, лежащим заподлицо с полом, границы между внутренней и внешней стороной могут быть размыты.
Однако они могут быть довольно тяжелыми, что означает меньшее остекление, а сложенные друг на друга (сложенные) панели могут стать серьезным препятствием для более скромного патио или кухни (их можно укладывать внутри или снаружи). Типичные затраты составляют 1000 фунтов стерлингов за панель шириной 1 м.
Ассортимент алюминиевых дверей Heritage от ID Systems призван имитировать внешний вид дверей в индустриальном стиле. (Изображение предоставлено ID Systems. Фотография Эд Датсона) Раздвижные двери : Раздвижные двери избавляются от ассоциаций 1960-х годов и в настоящее время являются чрезвычайно популярным выбором в современных домах.Они обеспечивают много света благодаря узкой (а в некоторых случаях практически незаметной) оправе.
Другие преимущества раздвижных дверей по сравнению с складывающимися вдвое, в том числе отсутствие секций, которые можно откинуть назад, экономия места и визуальная чистота — их можно даже спроектировать как «карманные двери», которые при открытии скользят в полости в стене.
Бельгия Двери : Бельгийские двери, также иногда называемые дверями в стиле Crittal, состоят из металлических (часто стальных) рам. Количество стекол и их конфигурация варьируется, но они часто состоят из пары боковых дверей, которые сочетаются с боковыми фонарями.
Эти двери подходят как для традиционных, так и для современных домов и в настоящее время пользуются большой популярностью как в качестве дверей для террас, так и для внутренних помещений.
Французские двери особенно хорошо подходят для старинной недвижимости. (Изображение предоставлено getty images) Французские двери : Французские двери, которые по-прежнему часто считаются резервом домов в традиционном стиле, на самом деле доступны во множестве дизайнов (и материалов, таких как алюминий), которые также будут сидеть довольно удобно.
в современном доме.
По сравнению с двустворчатыми и раздвижными дверями они, как правило, пропускают меньше света, учитывая их обычно меньшие размеры, хотя их сочетание с боковыми фонарями или размещение их в ряду остекления увеличит количество поступающего света. Они также хорошо сидят внутри возвышение, которое включает в себя складывающиеся вдвое или раздвижные двери в другом месте, и обеспечивает быстрый и легкий доступ в сад, когда вы не хотите открывать целую серию остекления.
Варианты дверей патио: что нового?
Двустворчатые двери остаются чрезвычайно популярным выбором, но отраслевые эксперты считают, что ситуация определенно меняется: все больше домовладельцев хотят раздвижные двери.Между тем старая добрая французская дверь неуклонно пользуется популярностью.
Раздвижные деревянные двери из Westgate Joinery стирают границы между патио с настилом и жилыми помещениями (Изображение предоставлено: Westgate Joinery)«Двустворчатые двери остаются такими же популярными, как и всегда, но мы также наблюдаем тенденция к раздвижным дверям более т
Раздвижная стенка с карманами | Raydoor
(212) 421-0641- Получите бесплатное индивидуальное предложение
- Закажите Консультацию
- Свяжитесь с Raydoor
- Продукты
- По системе
- Скользящий байпас
- Закрыть
- Раздвижная стенка
- Закрыть
- Скользящий карман
- Закрыть 9015 9015 9015
- 9015
- Стена сдвижного крыла
- Закрыть
- Стенки для штабелирования
- Закрыть
- Поворот
- 9015 Фиксированный
- 9016 9016 Закрыв
- Фиксированный
9016 Конец 9015 г.- По системе
- Закрыть
5 - Защитные барьеры
- Закрыть
- Все системы
- Закрыть
- Закрыть
- Закрыть
- Закрыть
- Закрыть
- Закрыть







4 Проемы и отверстия

п.
6 Арматурный стержень с отгибом под прямым углом, идущим в направлении от читателя
2 Один плоский каркас или сетка:
2 Поперечное сечение арматуры с последующим натяжением, расположенной в трубе или канале
Подоконная ниша. Одинарный переплёт, наружная четверть. Подоконные ниши снижают расход строительных материалов, увеличивают площадь комнат, позволяют устанавливать нагревательные приборы.
Двойные вращающиеся створки
Подвал
То есть позволяет устанавливать в проеме массивные полотна, без особых ограничений.
Их размеры по ширине превышают половину аналогичного параметра проема, а потому и здесь не обойтись без снятия части облицовки со стены.
5